Wheeling Village
homes for sale

125 Little Stream Lane Winston Salem, NC 27101

No items found.
Request information

Overview

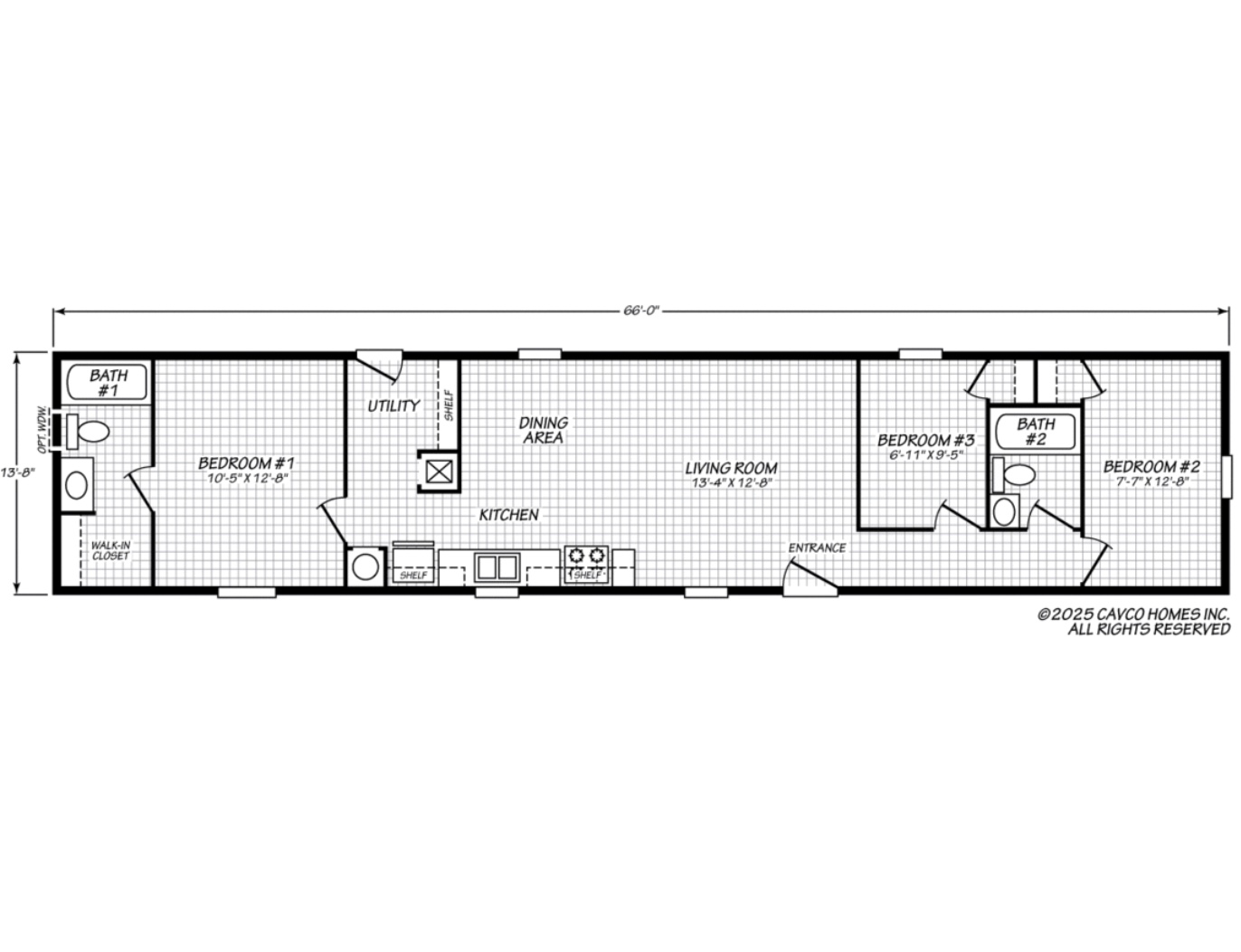
Welcome to this 910-square-foot manufactured home featuring three bedrooms and two full bathrooms in a well-maintained layout. The open floor plan connects the living areas and maximizes the available space, while recent interior updates eliminate the need for immediate renovations upon move-in. Each bedroom provides adequate space for furniture and personal belongings, and the two bathrooms accommodate daily routines without scheduling conflicts around busy mornings or evenings.

This home sits within a quiet community known for respectful neighbors and minimal disturbances. The location offers a balance between community interaction and personal privacy, making it suitable for various lifestyle preferences. With updated interior features and a modern exterior appearance, this home combines functional design with contemporary touches. The community's reputation for calm surroundings and considerate residents adds value to the overall living experience.

Amenities

Estimated Home Payment

$
$
years
%
Thank you! Your submission has been received!
Oops! Something went wrong while submitting the form.

$500 /mo

Does not include lot rent

Contact Us